DUEÑO DIRECTO: 3 dormitorios con cochera en Barrio Martin
Descripción ampliada
Laprida 1140, entre Mendoza y San Juan.
Piso 5. Al Contrafrente.
APTO CRÉDITO
Edificio y departamento con regularización de gas aprobada.
Unidad vacia, lista para transferir y ocupar.
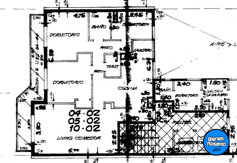
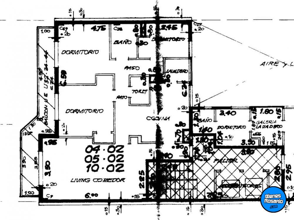
A tan solo 5 cuadras del Monumento a la bandera y del río, en el corazón de barrio Martin, se encuentra este departamento semipiso en el 5to piso de 3 dormitorios con cochera y baulera, en edificio de categoría.
Ingresando por amplio living comedor con pisos de parqué, aire acondicionado y calefactor, con acceso a ancho balcón corrido al contrafrente con vista al sector de piscina.
Cocina comedor diario independiente, completas alacenas y bajomesada, ventilador de techo y ventana. Lavadero independiente con ventilación a aire luz.
Un baño y un toilette.
Dos dormitorios grandes y muy luminosos, con completos placard. Tercer dormitorio o escritorio más pequeño, también con placard.
Cochera cubierta en primer subsuelo, de cómodo y fácil acceso, portón con control remoto.
Amplia baulera independiente en el piso 13.
Doble piscina de uso común con solárium en primer piso.
La unidad cuenta con Puerta principal de ingreso blindada y el edificio con sistema de seguridad Demarchi. Su estado de conservación general es excelente.
Edificio cuenta con 12 pisos de viviendas semipiso, 3 ascensores, y 2 departamentos por piso. Construcción Camp y Berca. Año 1987
POSIBILIDAD DE PERMUTA POR INMUEBLE DE INFERIOR VALOR
Piso 5. Al Contrafrente.
APTO CRÉDITO
Edificio y departamento con regularización de gas aprobada.
Unidad vacia, lista para transferir y ocupar.
A tan solo 5 cuadras del Monumento a la bandera y del río, en el corazón de barrio Martin, se encuentra este departamento semipiso en el 5to piso de 3 dormitorios con cochera y baulera, en edificio de categoría.
Ingresando por amplio living comedor con pisos de parqué, aire acondicionado y calefactor, con acceso a ancho balcón corrido al contrafrente con vista al sector de piscina.
Cocina comedor diario independiente, completas alacenas y bajomesada, ventilador de techo y ventana. Lavadero independiente con ventilación a aire luz.
Un baño y un toilette.
Dos dormitorios grandes y muy luminosos, con completos placard. Tercer dormitorio o escritorio más pequeño, también con placard.
Cochera cubierta en primer subsuelo, de cómodo y fácil acceso, portón con control remoto.
Amplia baulera independiente en el piso 13.
Doble piscina de uso común con solárium en primer piso.
La unidad cuenta con Puerta principal de ingreso blindada y el edificio con sistema de seguridad Demarchi. Su estado de conservación general es excelente.
Edificio cuenta con 12 pisos de viviendas semipiso, 3 ascensores, y 2 departamentos por piso. Construcción Camp y Berca. Año 1987
POSIBILIDAD DE PERMUTA POR INMUEBLE DE INFERIOR VALOR
Ubicación
Laprida 1140. Rosario. Santa Fe.
Expira en: 85 días
Datos de contacto
Contactar por WhatsApp
Descripción de la propiedad
Operación: Venta
Propiedad: Departamentos
Provincia: Santa Fe
Ciudad: Rosario
Dirección: Laprida 1140
Superficie: 85 m2
Dormitorios: 3 dormitorios o mas
Cantidad de Baños: 2 baños
Cocheras: 1 Cochera
Gastos Centrales: $ 120.000
Vendedor: Dueño Directo
Propiedad: Departamentos
Provincia: Santa Fe
Ciudad: Rosario
Dirección: Laprida 1140
Superficie: 85 m2
Dormitorios: 3 dormitorios o mas
Cantidad de Baños: 2 baños
Cocheras: 1 Cochera
Gastos Centrales: $ 120.000
Vendedor: Dueño Directo
Precio
U$S 138.000
Imprimir propiedad BienesRosario.com no comercializa la propiedad que aquí se anuncia y no es responsable por la transacción que se realice entre las partes. Verifique los datos de contacto del usuario para comunicarse con él.
Denunciar esta propiedad
ATENCIÓN ESTAFAS!
BienesRosario.com no contacta telefónicamente a sus usuarios.
BienesRosario.com no contacta telefónicamente a sus usuarios.






































