Venta/Financiacion Lotes En Campo de Amelia. Villa Amelia
Descripción ampliada
Venta/Financiacion Lotes En Campo de Amelia. Villa Amelia
Ubicacion
Ruta Provincial 18 km 11.5
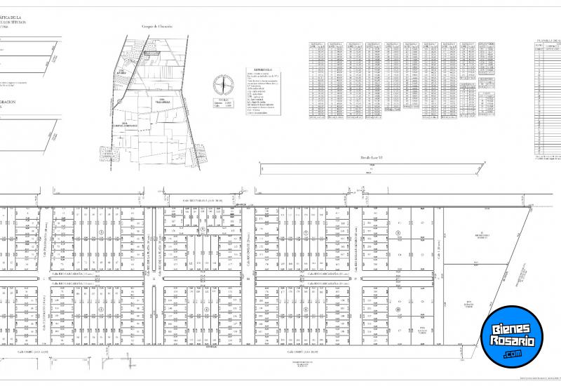
La propuesta del loteo CAMPOS DE AMELIA nace de la premisa de aportar al desarrollo urbano de la comuna de Villa Amelia, potenciando las capacidades de acceso a tierras de calidad para la radicación de nuevas familias, generando oferta de mano de obra en la construcción local para el desarrollo económico de la comunidad y sobretodo generando continuidad al trazado urbano existente. Desde el punto de vista de la ubicación geográfica, se encuentra directamente conectado a la ruta provincial 18 entre Rosario y el Arroyo del Medio. Conecta dicha localidad santafesina y la localidad bonaerense de Pergamino, permitiendo una gran accesibilidad y articulación logística con los centros más importantes del país. De las 20 hectáreas a urbanizar, 12 hectáreas serán las destinadas a lotes particulares de entre 400m² y 700m² en 10 manzanas, de las cuales 8 serán para uso residencial y 2 para uso comercial.
Se preveen las siguientes obras y servicios:
- Red de distribución de agua.
- Red de distribución de energía eléctrica.
-Boulevard de acceso principal pavimentado.
-Iluminación pública LED.
-Cordón cuneta.
-Calles transversales estabilizadas granular.
-Arbolado. -Cortina forestal.
-Sector de esparcimiento con plaza equipada.
-Reservorio pluvial.
-Posicionamiento de cámaras para el monitoreo y grabación comunal.
Nota: La información gráfica y escrita contenida en el presente aviso es meramente a título estimativo y no forma parte de ningún tipo de documentación contractual. Las medidas y superficies definitivas surgirán del título de propiedad del inmueble referido. Asimismo, los importes de impuestos, tasas, servicios y expensas aquí indicados están sujetos a verificación por parte del potencial comprador.
El valor del inmueble indicado en el presente puede ser modificado sin previo aviso.
Lotes disponibles desde 408m2 a 18.900 usd y hasta 691 m2 (12.80x54mts) a 32.000 usd
Entrega tercer trimestra de 2026
Ubicacion
Ruta Provincial 18 km 11.5
La propuesta del loteo CAMPOS DE AMELIA nace de la premisa de aportar al desarrollo urbano de la comuna de Villa Amelia, potenciando las capacidades de acceso a tierras de calidad para la radicación de nuevas familias, generando oferta de mano de obra en la construcción local para el desarrollo económico de la comunidad y sobretodo generando continuidad al trazado urbano existente. Desde el punto de vista de la ubicación geográfica, se encuentra directamente conectado a la ruta provincial 18 entre Rosario y el Arroyo del Medio. Conecta dicha localidad santafesina y la localidad bonaerense de Pergamino, permitiendo una gran accesibilidad y articulación logística con los centros más importantes del país. De las 20 hectáreas a urbanizar, 12 hectáreas serán las destinadas a lotes particulares de entre 400m² y 700m² en 10 manzanas, de las cuales 8 serán para uso residencial y 2 para uso comercial.
Se preveen las siguientes obras y servicios:
- Red de distribución de agua.
- Red de distribución de energía eléctrica.
-Boulevard de acceso principal pavimentado.
-Iluminación pública LED.
-Cordón cuneta.
-Calles transversales estabilizadas granular.
-Arbolado. -Cortina forestal.
-Sector de esparcimiento con plaza equipada.
-Reservorio pluvial.
-Posicionamiento de cámaras para el monitoreo y grabación comunal.
Nota: La información gráfica y escrita contenida en el presente aviso es meramente a título estimativo y no forma parte de ningún tipo de documentación contractual. Las medidas y superficies definitivas surgirán del título de propiedad del inmueble referido. Asimismo, los importes de impuestos, tasas, servicios y expensas aquí indicados están sujetos a verificación por parte del potencial comprador.
El valor del inmueble indicado en el presente puede ser modificado sin previo aviso.
Lotes disponibles desde 408m2 a 18.900 usd y hasta 691 m2 (12.80x54mts) a 32.000 usd
Entrega tercer trimestra de 2026
Ubicación
Ruta Provincial 18 11. Villa Amelia. Santa Fe.
Datos de contacto
EIGEN PROPIEDADES
Dirección: Mendoza 3198
Ciudad: Rosario
Provincia: Santa Fe
Teléfono: 341 - 3635550
Celular: 341 - 153635550
eMail: Ver Mail
Dirección: Mendoza 3198
Ciudad: Rosario
Provincia: Santa Fe
Teléfono: 341 - 3635550
Celular: 341 - 153635550
eMail: Ver Mail
Contactar por WhatsApp
Descripción de la propiedad
Operación: Venta
Propiedad: Terrenos
Provincia: Santa Fe
Ciudad: Villa Amelia
Dirección: Ruta Provincial 18 11
Superficie: 400 m2
Vendedor: Inmobiliaria
Propiedad: Terrenos
Provincia: Santa Fe
Ciudad: Villa Amelia
Dirección: Ruta Provincial 18 11
Superficie: 400 m2
Vendedor: Inmobiliaria
Precio
U$S 16.900
Imprimir propiedad BienesRosario.com no comercializa la propiedad que aquí se anuncia y no es responsable por la transacción que se realice entre las partes. Verifique los datos de contacto del usuario para comunicarse con él.
Denunciar esta propiedad
ATENCIÓN ESTAFAS!
BienesRosario.com no contacta telefónicamente a sus usuarios.
BienesRosario.com no contacta telefónicamente a sus usuarios.





































