BALCARCE 1456 - CASA INTERNA -CON COCHERA - 2 PLANTAS -
Descripción ampliada
CASA 3 DORMITORIOS en 3 PLANTAS BALCARCE 1456
CON COCHERA
RECICLADA A NUEVA CON DISEÑO DE AUTOR.
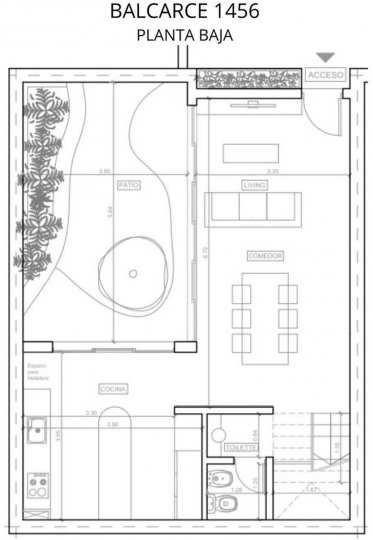
Al ingresar te recibirá, un patio que agrega LUMINOSIDAD y un ESPACIO AL AIRE LIBRE.
Ingreso por pasillo, LIVING COMEDOR , COCINA SEPARADA POR BARRA con BAJO MESADAS Y ALACENAS.
En PLANTA BAJA se encuentra la COCINA y ESTAR COMEDOR, con un TOILLETTE DE SERVICIO.
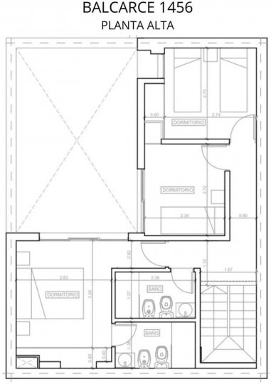
En PLANTA ALTA se encuentran los 3 DORMITORIOS con PLACARES COMPLETOS CON FRENTE CORREDIZO E INTERIORES ,Y 2 BAÑOS, uno de ellos en SUITE CON EL DORMITORIO PRINCIPAL.
PATIO en planta baja
-
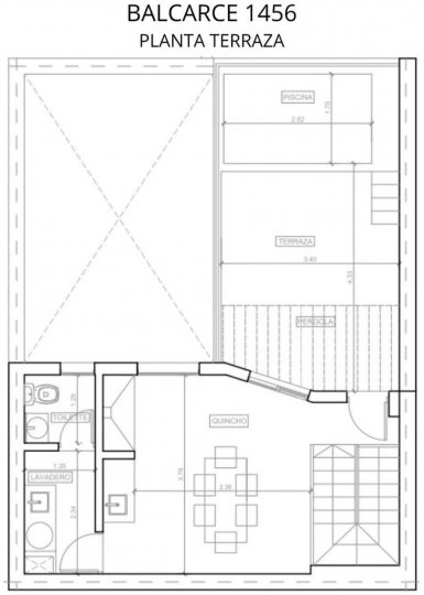
TERRAZA: QUINCHO CUBIERTO EQUIPADO CON MESADA - PARRILLERO - LAVADERO - Y TOILLETE
ESPACIO DE SOLARIUM CON PISCINA.
SERVICIOS: Medidor de agua independiente, tablero eléctrico independiente y servicio de Litoral Gas habilitado .
CLIMATIZACION Y AGUA CALIENTE PREVISTA POR CALDERA.
APTO CREDITO
- KP426274 - KPT101818 -
- Publicado usando KiteProp CRM Inmobiliario
CON COCHERA
RECICLADA A NUEVA CON DISEÑO DE AUTOR.
Al ingresar te recibirá, un patio que agrega LUMINOSIDAD y un ESPACIO AL AIRE LIBRE.
Ingreso por pasillo, LIVING COMEDOR , COCINA SEPARADA POR BARRA con BAJO MESADAS Y ALACENAS.
En PLANTA BAJA se encuentra la COCINA y ESTAR COMEDOR, con un TOILLETTE DE SERVICIO.
En PLANTA ALTA se encuentran los 3 DORMITORIOS con PLACARES COMPLETOS CON FRENTE CORREDIZO E INTERIORES ,Y 2 BAÑOS, uno de ellos en SUITE CON EL DORMITORIO PRINCIPAL.
PATIO en planta baja
-
TERRAZA: QUINCHO CUBIERTO EQUIPADO CON MESADA - PARRILLERO - LAVADERO - Y TOILLETE
ESPACIO DE SOLARIUM CON PISCINA.
SERVICIOS: Medidor de agua independiente, tablero eléctrico independiente y servicio de Litoral Gas habilitado .
CLIMATIZACION Y AGUA CALIENTE PREVISTA POR CALDERA.
APTO CREDITO
- KP426274 - KPT101818 -
- Publicado usando KiteProp CRM Inmobiliario
Ubicación
Balcarce 1456. Rosario. Santa Fe.
Datos de contacto
GARGARELLA INMOBILIARIA
Dirección: Corrientes 763 - 6° piso Of. 3
Ciudad: Rosario
Provincia: Santa Fe
Teléfono: 0341 - 4494637
Celular: 0341 - 153929779
eMail: Ver Mail
Dirección: Corrientes 763 - 6° piso Of. 3
Ciudad: Rosario
Provincia: Santa Fe
Teléfono: 0341 - 4494637
Celular: 0341 - 153929779
eMail: Ver Mail
Contactar por WhatsApp
Contactar por e-mail
Descripción de la propiedad
Operación: Venta
Propiedad: Casas
Provincia: Santa Fe
Ciudad: Rosario
Dirección: BALCARCE 1456
Superficie: 174 m2
Dormitorios: 3 dormitorios o mas
Cantidad de Baños: 2 baños
A estrenar: Si
Vendedor: Inmobiliaria
Apto Crédito: Si
Propiedad: Casas
Provincia: Santa Fe
Ciudad: Rosario
Dirección: BALCARCE 1456
Superficie: 174 m2
Dormitorios: 3 dormitorios o mas
Cantidad de Baños: 2 baños
A estrenar: Si
Vendedor: Inmobiliaria
Apto Crédito: Si
Precio
U$S 295.000
Imprimir propiedad BienesRosario.com no comercializa la propiedad que aquí se anuncia y no es responsable por la transacción que se realice entre las partes. Verifique los datos de contacto del usuario para comunicarse con él.
Denunciar esta propiedad
ATENCIÓN ESTAFAS!
BienesRosario.com no contacta telefónicamente a sus usuarios.
BienesRosario.com no contacta telefónicamente a sus usuarios.