San Juan 1400. Estrenar. Divisible. Cocina equipada. Balc髇. Terraza com鷑 con parrillero.
Descripción ampliada
Venta - Monoambiente Divisible en la mejor zona de Rosario
Ubicado en pleno centro de la ciudad en zona de comercios, gastronom韆 y bancos, con r醦idos accesos a los puntos neur醠gicos de Rosario.
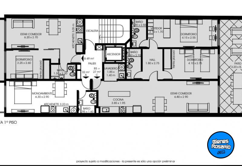
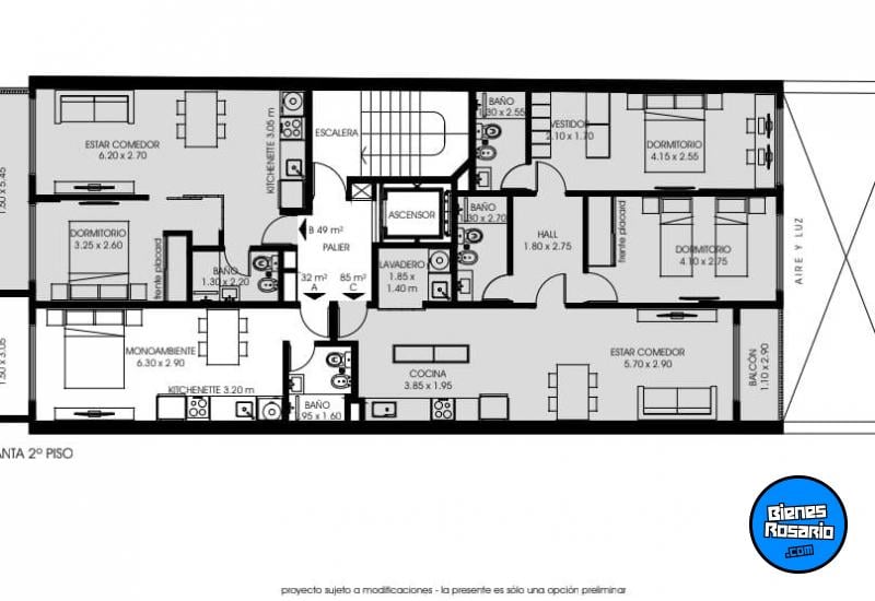
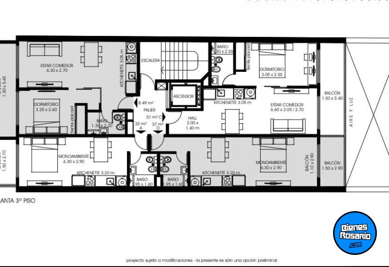
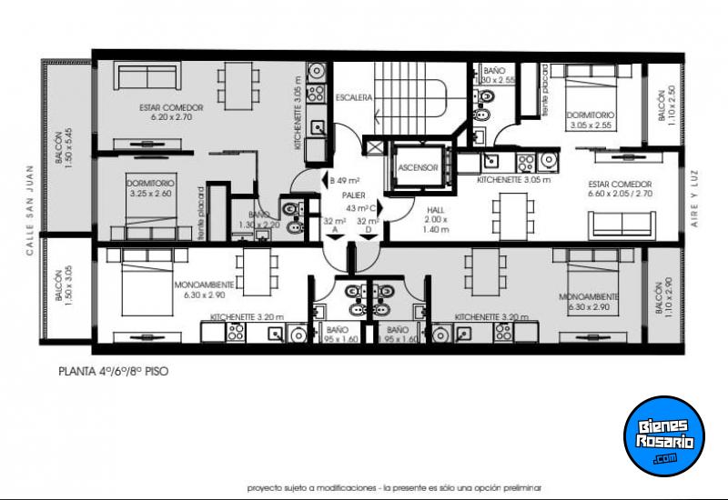
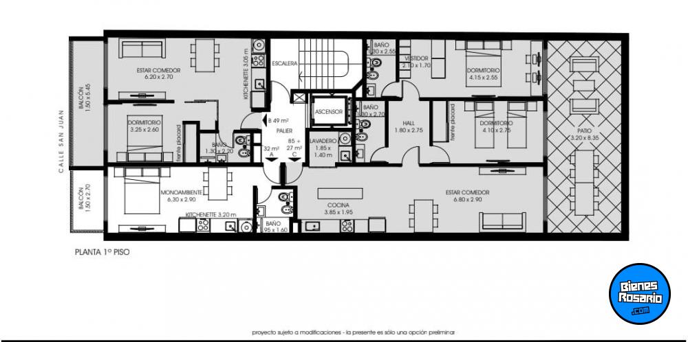
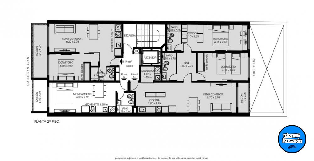
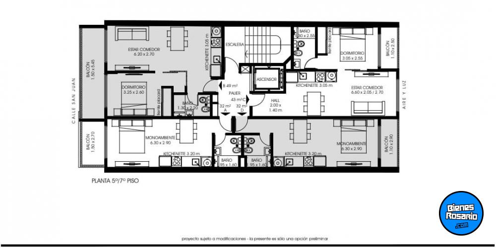
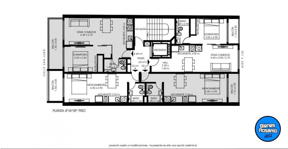
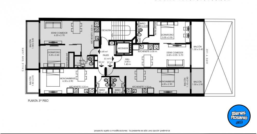
Edificio en construcci髇 de planta baja, 8 pisos y terraza, compuesto por 4 departamentos por piso.
Cuentan con ambiente 鷑ico con cocina integrada totalmente equipada, ba駉 y balc髇.
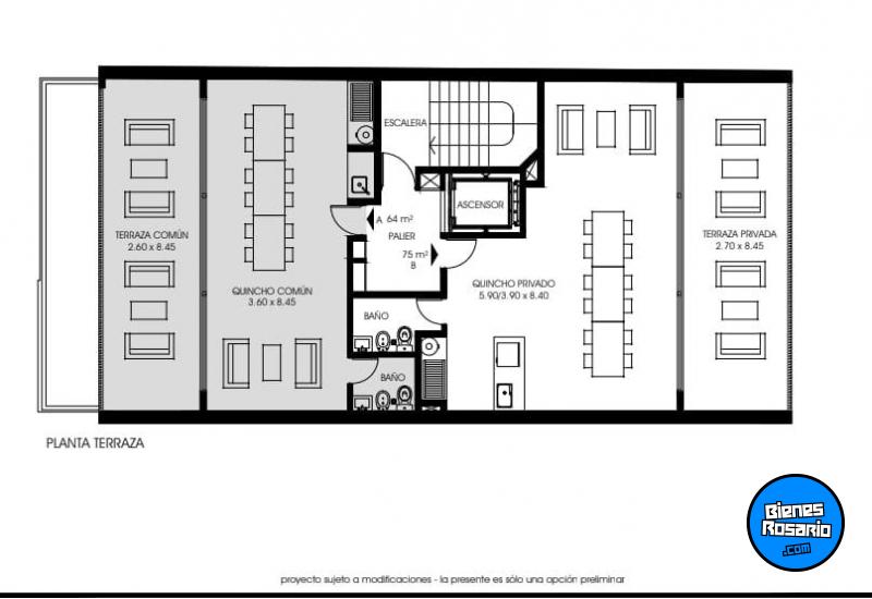
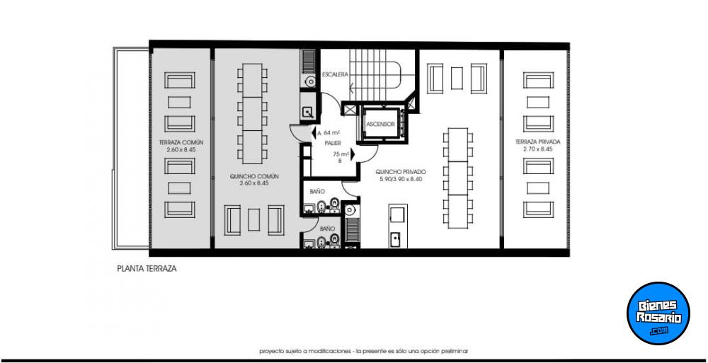
Adem醩 posee en la terraza sector social con quincho de uso com鷑 y parrillero.
Consultar financiaci髇.
Fecha de entrega: Marzo de 2027.
Ubicado en pleno centro de la ciudad en zona de comercios, gastronom韆 y bancos, con r醦idos accesos a los puntos neur醠gicos de Rosario.
Edificio en construcci髇 de planta baja, 8 pisos y terraza, compuesto por 4 departamentos por piso.
Cuentan con ambiente 鷑ico con cocina integrada totalmente equipada, ba駉 y balc髇.
Adem醩 posee en la terraza sector social con quincho de uso com鷑 y parrillero.
Consultar financiaci髇.
Fecha de entrega: Marzo de 2027.
Ubicación
San Juan 1400. Rosario. Santa Fe.
Datos de contacto
Soljan Inmobiliaria Boutique
Dirección: 3 de Febrero 1769 PB
Ciudad: Rosario
Provincia: Santa Fe
Teléfono: 0341 - 4264409
Celular: 0341 - 156873369
eMail: Ver Mail
Instagram: @soljaninmobiliaria
Dirección: 3 de Febrero 1769 PB
Ciudad: Rosario
Provincia: Santa Fe
Teléfono: 0341 - 4264409
Celular: 0341 - 156873369
eMail: Ver Mail
Instagram: @soljaninmobiliaria
Contactar por WhatsApp
Contactar por e-mail
Descripción de la propiedad
Operación: Venta
Propiedad: Departamentos
Provincia: Santa Fe
Ciudad: Rosario
Dirección: San Juan 1400
Superficie: 28 m2
Dormitorios: Monoambiente
Cantidad de Baños: 1 baño
Gastos Centrales: $ 0
A estrenar: Si
Vendedor: Inmobiliaria
Propiedad: Departamentos
Provincia: Santa Fe
Ciudad: Rosario
Dirección: San Juan 1400
Superficie: 28 m2
Dormitorios: Monoambiente
Cantidad de Baños: 1 baño
Gastos Centrales: $ 0
A estrenar: Si
Vendedor: Inmobiliaria
Precio
U$S 48.000
Imprimir propiedad BienesRosario.com no comercializa la propiedad que aquí se anuncia y no es responsable por la transacción que se realice entre las partes. Verifique los datos de contacto del usuario para comunicarse con él.
Denunciar esta propiedad
ATENCIÓN ESTAFAS!
BienesRosario.com no contacta telefónicamente a sus usuarios.
BienesRosario.com no contacta telefónicamente a sus usuarios.







































