bv orono oportunidad
Descripción ampliada
BV ORONO Y ZEBALLOS 2239 Frente a sanatorio mapaci
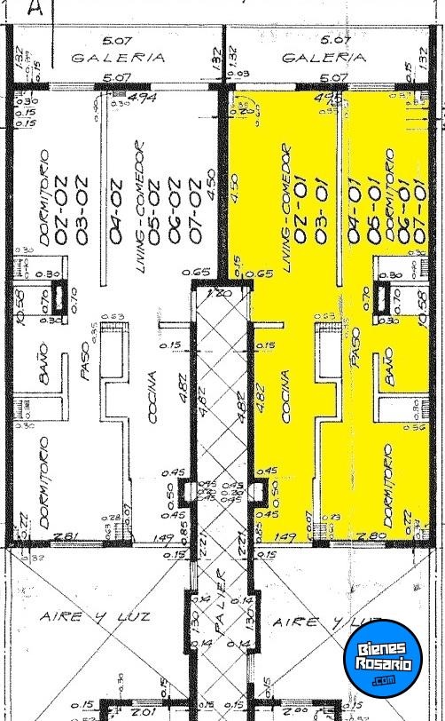
DEPARTAMENTO antiguo en buen estado de conservaci髇 compuesto de 2 habitaciones ,1 ba駉 ,Living comedor ,con balc髇 terraza todo a la calle , Cocina con lavadero incorporado,
Total de metros cubiertos 48 m2 + 7 m2 de balc髇 . totales 55 m2
Valor de venta u$s 65.000
Nota :Al momento de la publicaci髇 Noviembre 2025 se estaba tramitando la inscripci髇 de la declaratoria de herederos
DEPARTAMENTO antiguo en buen estado de conservaci髇 compuesto de 2 habitaciones ,1 ba駉 ,Living comedor ,con balc髇 terraza todo a la calle , Cocina con lavadero incorporado,
Total de metros cubiertos 48 m2 + 7 m2 de balc髇 . totales 55 m2
Valor de venta u$s 65.000
Nota :Al momento de la publicaci髇 Noviembre 2025 se estaba tramitando la inscripci髇 de la declaratoria de herederos
Ubicación
2239 Pra. Rosario. Santa Fe.
Datos de contacto
Ramirez Loy Propiedades
Dirección: Sarmiento 1728
Ciudad: Rosario
Provincia: Santa Fe
Celular: 0341 - 153490914
eMail: Ver Mail
Dirección: Sarmiento 1728
Ciudad: Rosario
Provincia: Santa Fe
Celular: 0341 - 153490914
eMail: Ver Mail
Contactar por WhatsApp
Descripción de la propiedad
Operación: Venta
Propiedad: Departamentos
Provincia: Santa Fe
Ciudad: Rosario
Dirección: 2239 PRA
Superficie: 55 m2
Dormitorios: 2 dormitorios
Cantidad de Baños: 1 baño
Gastos Centrales: $ 75.000
Vendedor: Inmobiliaria
Propiedad: Departamentos
Provincia: Santa Fe
Ciudad: Rosario
Dirección: 2239 PRA
Superficie: 55 m2
Dormitorios: 2 dormitorios
Cantidad de Baños: 1 baño
Gastos Centrales: $ 75.000
Vendedor: Inmobiliaria
Precio
U$S 65.000
Imprimir propiedad BienesRosario.com no comercializa la propiedad que aquí se anuncia y no es responsable por la transacción que se realice entre las partes. Verifique los datos de contacto del usuario para comunicarse con él.
Denunciar esta propiedad
ATENCIÓN ESTAFAS!
BienesRosario.com no contacta telefónicamente a sus usuarios.
BienesRosario.com no contacta telefónicamente a sus usuarios.


























