Nave Logística AAA 10500 m² ? José María Rosa 3509 BIS ? Ubicación Estratégica
Descripción ampliada
Nave logística AAA en alquiler sobre Av. Circunvalación de Rosario (José María Rosa al 3500 BIS), esquina Cullen y Ugarte.
-Ubicada en una estratégica zona con acceso inmediato a la circunvalación, esta amplia nave de 15.500 m² de superficie cubierta se encuentra sobre un terreno de 34412 m², con una superficie total de 18.680 m², que incluye oficinas, playa de maniobra y áreas semicubiertas. La propiedad está completamente equipada para cumplir con los más altos estándares logísticos e industriales.
Características principales:
Superficie total: 18.680 m²
Superficie de naves: 10.500 m²
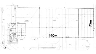
Distribución interna: 2 naves: (opción alquiler parcial)
Nave 2: 7.500 m²
Nave 3: 3.000 m²
Medidas: 140x75m
Infraestructura y servicios:
Techo: Techo a dos aguas con estructura de alma llena y chapas traslúcidas y aislante térmico
Piso de hormigón impecable
Sistema de extinción y detección de incendios con hidrantes.
Altura de las naves:
-Naves 2 y 3: 17 m máximos, altura mínima de 16.20 m
Servicios disponibles:
Agua
Electricidad trifásica
Teléfono, internet y red con conexión Alarma
Cloacas
Seguridad: Servicio de vigilancia 24 horas
- KP390338 - KPT031703 -
- Publicado usando KiteProp CRM Inmobiliario
-Ubicada en una estratégica zona con acceso inmediato a la circunvalación, esta amplia nave de 15.500 m² de superficie cubierta se encuentra sobre un terreno de 34412 m², con una superficie total de 18.680 m², que incluye oficinas, playa de maniobra y áreas semicubiertas. La propiedad está completamente equipada para cumplir con los más altos estándares logísticos e industriales.
Características principales:
Superficie total: 18.680 m²
Superficie de naves: 10.500 m²
Distribución interna: 2 naves: (opción alquiler parcial)
Nave 2: 7.500 m²
Nave 3: 3.000 m²
Medidas: 140x75m
Infraestructura y servicios:
Techo: Techo a dos aguas con estructura de alma llena y chapas traslúcidas y aislante térmico
Piso de hormigón impecable
Sistema de extinción y detección de incendios con hidrantes.
Altura de las naves:
-Naves 2 y 3: 17 m máximos, altura mínima de 16.20 m
Servicios disponibles:
Agua
Electricidad trifásica
Teléfono, internet y red con conexión Alarma
Cloacas
Seguridad: Servicio de vigilancia 24 horas
- KP390338 - KPT031703 -
- Publicado usando KiteProp CRM Inmobiliario
Ubicación
José. M Rosa 3509 Bis. Rosario. Santa Fe.
Datos de contacto
Arpini Inmobiliaria
Ciudad: Rosario
Provincia: Santa Fe
Celular: 0341 - 156449883
eMail: Ver Mail
Instagram: @arpini
Ciudad: Rosario
Provincia: Santa Fe
Celular: 0341 - 156449883
eMail: Ver Mail
Instagram: @arpini
Contactar por WhatsApp
Contactar por e-mail
Descripción de la propiedad
Operación: Alquiler
Propiedad: Galpones / Depósitos
Provincia: Santa Fe
Ciudad: Rosario
Dirección: José. M rosa 3509 BIS
Superficie: 18.680 m2
Vendedor: Inmobiliaria
Propiedad: Galpones / Depósitos
Provincia: Santa Fe
Ciudad: Rosario
Dirección: José. M rosa 3509 BIS
Superficie: 18.680 m2
Vendedor: Inmobiliaria
Precio
U$S 52.500
Imprimir propiedad BienesRosario.com no comercializa la propiedad que aquí se anuncia y no es responsable por la transacción que se realice entre las partes. Verifique los datos de contacto del usuario para comunicarse con él.
Denunciar esta propiedad
ATENCIÓN ESTAFAS!
BienesRosario.com no contacta telefónicamente a sus usuarios.
BienesRosario.com no contacta telefónicamente a sus usuarios.















































