Av. De los Incas S/N
Descripción ampliada
V E N T A
PROPIEDAD APTA CRÉDITO HIPOTECARIO
📍 Av. De los Incas S/N – Ibarlucea
(B° Campos de Ibarlucea) Barrio cerrado pero nó privado.(Sin expensas)
Excelente vivienda con estilo de campo
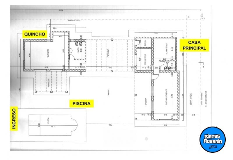
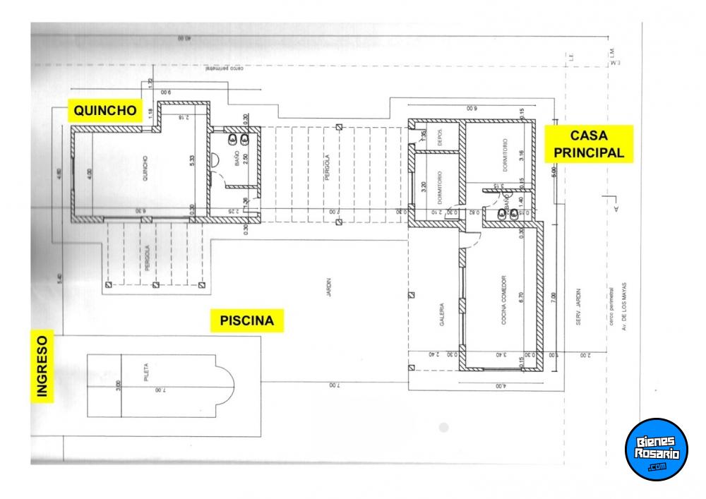
Vivienda principal:
Cocina comedor muy luminosa
Dos habitaciones y Baño
Cuarto de herramientas
Quincho:
Parrillero cubierto
Cocina completa
Salamandra
Baño completo
Piscina automatizada
Perforación con bomba
Destacable jardín parquizado
Riego automatizado
Generosa forestación añosa
Sobre terreno de 1000 m2
Con una construcción de 140 m2
Valor: u$s 102.000.-
DISPONIBILIDAD INMEDIATA
Más info:
🖥️ www.estebanzappala.com
📧 [email protected]
☎️ 03476-421397
📲 3476-304777
PROPIEDAD APTA CRÉDITO HIPOTECARIO
📍 Av. De los Incas S/N – Ibarlucea
(B° Campos de Ibarlucea) Barrio cerrado pero nó privado.(Sin expensas)
Excelente vivienda con estilo de campo
Vivienda principal:
Cocina comedor muy luminosa
Dos habitaciones y Baño
Cuarto de herramientas
Quincho:
Parrillero cubierto
Cocina completa
Salamandra
Baño completo
Piscina automatizada
Perforación con bomba
Destacable jardín parquizado
Riego automatizado
Generosa forestación añosa
Sobre terreno de 1000 m2
Con una construcción de 140 m2
Valor: u$s 102.000.-
DISPONIBILIDAD INMEDIATA
Más info:
🖥️ www.estebanzappala.com
📧 [email protected]
☎️ 03476-421397
📲 3476-304777
Ubicación
Ibarlucea Av. De Los Incas Campos De Ibarlucea. Ibarlucea. Santa Fe.
Datos de contacto
Esteban Zappalá Propiedades
Dirección: Moreno N° 423
Ciudad: San Lorenzo
Provincia: Santa Fe
Teléfono: 03476 - 421397
Celular: 03476 - 15304777
eMail: Ver Mail
Dirección: Moreno N° 423
Ciudad: San Lorenzo
Provincia: Santa Fe
Teléfono: 03476 - 421397
Celular: 03476 - 15304777
eMail: Ver Mail
Contactar por WhatsApp
Descripción de la propiedad
Operación: Venta
Propiedad: Casas
Provincia: Santa Fe
Ciudad: Ibarlucea
Dirección: Ibarlucea Av. de los Incas CAMPOS DE IBARLUCEA
Superficie: 1.000 m2
Dormitorios: 2 dormitorios
Cantidad de Baños: 2 baños
Patio: Si
Vendedor: Inmobiliaria
Propiedad: Casas
Provincia: Santa Fe
Ciudad: Ibarlucea
Dirección: Ibarlucea Av. de los Incas CAMPOS DE IBARLUCEA
Superficie: 1.000 m2
Dormitorios: 2 dormitorios
Cantidad de Baños: 2 baños
Patio: Si
Vendedor: Inmobiliaria
Precio
U$S 102.000
Imprimir propiedad BienesRosario.com no comercializa la propiedad que aquí se anuncia y no es responsable por la transacción que se realice entre las partes. Verifique los datos de contacto del usuario para comunicarse con él.
Denunciar esta propiedad
ATENCIÓN ESTAFAS!
BienesRosario.com no contacta telefónicamente a sus usuarios.
BienesRosario.com no contacta telefónicamente a sus usuarios.








































