Oportunidad Vivienda a terminar
Descripción ampliada
Vendo en Alvear Ecopueblo
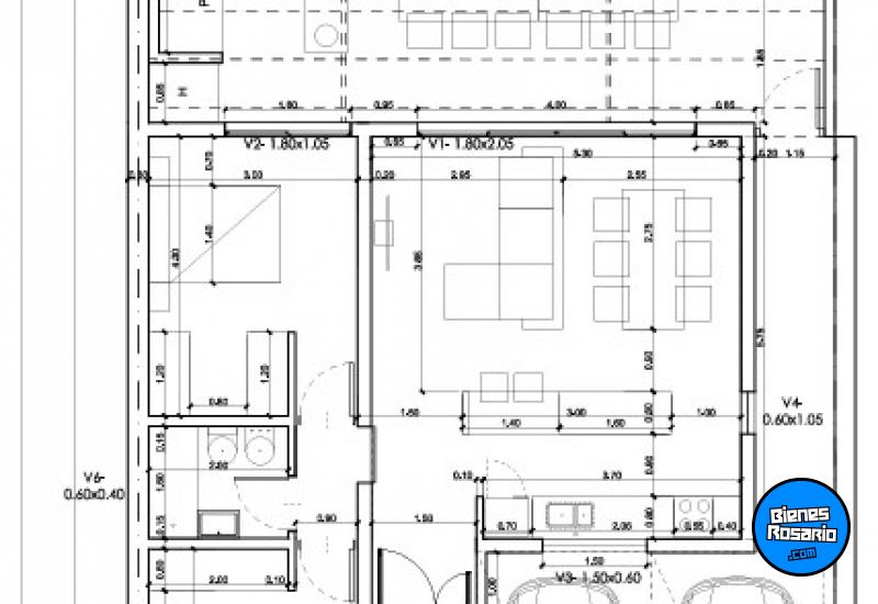
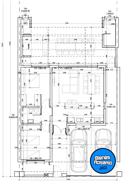
Casa en construcción de 85 m² en terreno de 10x27, todo techado y revocado.
Cuenta con 2 dormitorios, 2 baños, cocina–comedor, Quincho integrado con parrillero con lavadero y garage para 2 autos. Pensada para seguir la construcción en planta alta.
Aberturas interiores y exteriores colocadas.
Instalación eléctrica casi completa a terminar, desagües completos, contrapiso y carpeta realizados.
Agua hasta la entrada del lote (resta instalación interna).
Se vende tal como está, ideal para terminar a gusto.
Documentación: acta de posesión. Se puede ceder para escriturar el nuevo dueño
Excelente oportunidad. Escucho ofertas razonables de contado. Tomo vehiculo en parte de pago.
Casa en construcción de 85 m² en terreno de 10x27, todo techado y revocado.
Cuenta con 2 dormitorios, 2 baños, cocina–comedor, Quincho integrado con parrillero con lavadero y garage para 2 autos. Pensada para seguir la construcción en planta alta.
Aberturas interiores y exteriores colocadas.
Instalación eléctrica casi completa a terminar, desagües completos, contrapiso y carpeta realizados.
Agua hasta la entrada del lote (resta instalación interna).
Se vende tal como está, ideal para terminar a gusto.
Documentación: acta de posesión. Se puede ceder para escriturar el nuevo dueño
Excelente oportunidad. Escucho ofertas razonables de contado. Tomo vehiculo en parte de pago.
Ubicación
C. El Ciruelo 1128. Alvear. Santa Fe.
Expira en: 43 días
Datos de contacto
Contactar por WhatsApp
Descripción de la propiedad
Operación: Venta
Propiedad: Casas
Provincia: Santa Fe
Ciudad: Alvear
Dirección: C. El Ciruelo 1128
Superficie: 85 m2
Dormitorios: 2 dormitorios
Cantidad de Baños: 2 baños
Cocheras: 2 Cocheras
Patio: Si
Vendedor: Dueño Directo
Propiedad: Casas
Provincia: Santa Fe
Ciudad: Alvear
Dirección: C. El Ciruelo 1128
Superficie: 85 m2
Dormitorios: 2 dormitorios
Cantidad de Baños: 2 baños
Cocheras: 2 Cocheras
Patio: Si
Vendedor: Dueño Directo
Precio
U$S 70.000
Imprimir propiedad BienesRosario.com no comercializa la propiedad que aquí se anuncia y no es responsable por la transacción que se realice entre las partes. Verifique los datos de contacto del usuario para comunicarse con él.
Denunciar esta propiedad
ATENCIÓN ESTAFAS!
BienesRosario.com no contacta telefónicamente a sus usuarios.
BienesRosario.com no contacta telefónicamente a sus usuarios.






























