MORENO 1152 - CASA INTERNA 3 DORMITORIOS -
Descripción ampliada
VENTA CASA INTERNA 3 DORMITORIOS CON PILETA Y COCHERA OPCIONAL - CENTRO, ROSARIO
SOBRE LA ZONA:
Ubicado sobre calle Moreno, entre San Juan y Mendoza, en zona estratégica del centro de Rosario. Zona dinámica y accesible, rodeada de locales comerciales, servicios, restaurantes y espacios de entretenimiento. Amplia conexión de transporte público.
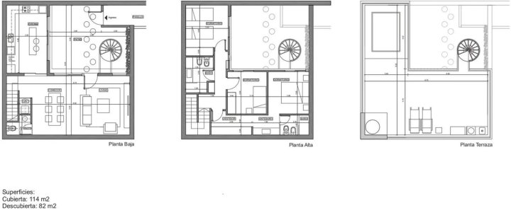
VIVIENDA DE PASILLO COMPUESTA DE 4 UNIDADES DE VIVIENDAS EN TOTAL -
DESARROLLADA EN 2 PLANTAS:
PLANTA BAJA: INGRESO A TRAVES DE AMPLIO PATIO CON JARDIN - GRAN LIVING COMEDOR - COCINA SEPARADA CON ISLA Y EQUIPADA CON AMOBLAMIENTO COMPLETO - TOILLETE DE RECEPCION - LAVADERO SECTORIZADO
PLANTA ALTA : 1 DORMITORIO PRINCIPAL EN SUITE CON VESTIDOR - 2 DORMITORIOS SECUNDARIOS CON PLACARES EMPOTRADOS - GRAN CAPACIDAD DE GUARDADO - 1 BAÑO COMPLETO CON SANITARIOS Y GRIFERIAS DE PRIMERA CALIDAD
ACCESO A TERRAZA CON PISCINA Y SECTOR VERDE
COCHERA OPCIONAL USD 25.000
ENTREGA MARZO 2027
- KP477312 - KPT032521 -
- Publicado usando KiteProp CRM Inmobiliario
SOBRE LA ZONA:
Ubicado sobre calle Moreno, entre San Juan y Mendoza, en zona estratégica del centro de Rosario. Zona dinámica y accesible, rodeada de locales comerciales, servicios, restaurantes y espacios de entretenimiento. Amplia conexión de transporte público.
VIVIENDA DE PASILLO COMPUESTA DE 4 UNIDADES DE VIVIENDAS EN TOTAL -
DESARROLLADA EN 2 PLANTAS:
PLANTA BAJA: INGRESO A TRAVES DE AMPLIO PATIO CON JARDIN - GRAN LIVING COMEDOR - COCINA SEPARADA CON ISLA Y EQUIPADA CON AMOBLAMIENTO COMPLETO - TOILLETE DE RECEPCION - LAVADERO SECTORIZADO
PLANTA ALTA : 1 DORMITORIO PRINCIPAL EN SUITE CON VESTIDOR - 2 DORMITORIOS SECUNDARIOS CON PLACARES EMPOTRADOS - GRAN CAPACIDAD DE GUARDADO - 1 BAÑO COMPLETO CON SANITARIOS Y GRIFERIAS DE PRIMERA CALIDAD
ACCESO A TERRAZA CON PISCINA Y SECTOR VERDE
COCHERA OPCIONAL USD 25.000
ENTREGA MARZO 2027
- KP477312 - KPT032521 -
- Publicado usando KiteProp CRM Inmobiliario
Ubicación
Moreno 1152. Rosario. Santa Fe.
Datos de contacto
GARGARELLA INMOBILIARIA
Dirección: Corrientes 763 - 6° piso Of. 3
Ciudad: Rosario
Provincia: Santa Fe
Teléfono: 0341 - 4494637
Celular: 0341 - 153929779
eMail: Ver Mail
Instagram: @gargarella.inmobiliaria
Dirección: Corrientes 763 - 6° piso Of. 3
Ciudad: Rosario
Provincia: Santa Fe
Teléfono: 0341 - 4494637
Celular: 0341 - 153929779
eMail: Ver Mail
Instagram: @gargarella.inmobiliaria
Contactar por WhatsApp
Contactar por e-mail
Descripción de la propiedad
Operación: Venta
Propiedad: Casas
Provincia: Santa Fe
Ciudad: Rosario
Dirección: MORENO 1152
Superficie: 195 m2
Dormitorios: 3 dormitorios o mas
Cantidad de Baños: 2 baños
Vendedor: Inmobiliaria
Propiedad: Casas
Provincia: Santa Fe
Ciudad: Rosario
Dirección: MORENO 1152
Superficie: 195 m2
Dormitorios: 3 dormitorios o mas
Cantidad de Baños: 2 baños
Vendedor: Inmobiliaria
Precio
U$S 270.000
Imprimir propiedad BienesRosario.com no comercializa la propiedad que aquí se anuncia y no es responsable por la transacción que se realice entre las partes. Verifique los datos de contacto del usuario para comunicarse con él.
Denunciar esta propiedad
ATENCIÓN ESTAFAS!
BienesRosario.com no contacta telefónicamente a sus usuarios.
BienesRosario.com no contacta telefónicamente a sus usuarios.

















