BROWN 2761 - 3 DORMITORIOS -
Descripción ampliada
PROPIEDAD DE PASILLO COMPLETAMENTE NUEVA ,EDIFICADA DESDE SUS CIMIENTOS
SE DESARROLLA EN DOS PLANTAS - CUENTA CON TERRAZA Y QUINCHO - DISEÑO MODERNO - ORGANIZACION FUNCIONAL DE LOS AMBIENTES
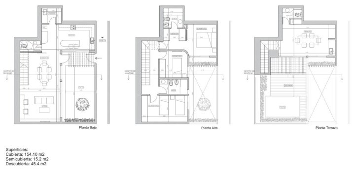
PLANTA BAJA
- PATIO DE INGRESO : al acceder a la vivienda, un amplio espacio verde recibe con luz natural y ofrece un entorno exterior acogedor, pensado para el relax y la vida al aire libre.
COCINA CON ISLA: se presenta como un ambiente independiente, bien equipado y funcional, donde la isla aporta superficie adicional de trabajo.
ESTAR COMEDOR AMPLIO: concebido como un espacio confortable y versátil, ideal para compartir momentos y disfrutar del descanso cotidiano.
TOILLETTE - LAVADERO INDEPENDIENTE ( CON ACCESO DESDE LA COCINA)
PLANTA ALTA
DORMITORIO SUITE: proyectado para ofrecer comodidad y funcionalidad, garantizando un ambiente agradable y confortable, con su baño particular que asegura privacidad.
-DORMITORIOS SECUNDARIOS: equipados con placares empotrados de estilo moderno y amplia capacidad de guardado, estos espacios comparten un baño completo de uso común.
TERRAZA
QUINCHO : amplio espacio equipado con parrilla, mesada con bacha y lugar suficiente para colocar una gran mesa, ideal para reuniones. Un ambiente pensado para disfrutar en compañía, combinando funcionalidad y confort.
SOLARIUM Y PÌSCINA: este espacio invita a relajarse y disfrutar de momentos únicos en la privacidad de tu hogar.
El diseño de esta terraza propone un entorno versátil y acogedor, pensado tanto para momentos de descanso como para reuniones y actividades sociales.
PISOS Y REVESTIMIENTOS
Pisos de Porcelanato, revestimientos y zócalos EPS de primera línea.
CLIMATIZACIÓN
Se prevé la pre instalación de aires acondicionados.
Se prevé la instalación de calefacción con instalación de Caldera.
MOBILIARIO DE COCINA
Alacena y bajo mesada de diseño con iluminación en mobiliario. Mesada de Silestone o similar calidad.
Bacha de acero inoxidable con grifería de primera línea. Espacio disponible para purificador y/o extractor de cocina. Horno eléctrico y anafe a gas embutido.
PLACARES, DORMITORIOS Y BAÑOS
Placares completos con frentes corredizos o de abrir. Diseño interior con estantes, cajones y barrales.
Los baños cuentan con receptores para sus duchas, vanity completo y espejo.
Sanitarios y griferías de primera marca.
JARDÍN Y TERRAZA
Jardín con intervención de paisajismo en Planta Baja.
En la última planta, un quincho con espacio para parrilla, mesada con bacha y toilette.
En el exterior se ubica una pergola, la pileta y un solárium con intervención entre canteros y verde.
- KP477972 - KPT040112 -
- Publicado usando KiteProp CRM Inmobiliario
SE DESARROLLA EN DOS PLANTAS - CUENTA CON TERRAZA Y QUINCHO - DISEÑO MODERNO - ORGANIZACION FUNCIONAL DE LOS AMBIENTES
PLANTA BAJA
- PATIO DE INGRESO : al acceder a la vivienda, un amplio espacio verde recibe con luz natural y ofrece un entorno exterior acogedor, pensado para el relax y la vida al aire libre.
COCINA CON ISLA: se presenta como un ambiente independiente, bien equipado y funcional, donde la isla aporta superficie adicional de trabajo.
ESTAR COMEDOR AMPLIO: concebido como un espacio confortable y versátil, ideal para compartir momentos y disfrutar del descanso cotidiano.
TOILLETTE - LAVADERO INDEPENDIENTE ( CON ACCESO DESDE LA COCINA)
PLANTA ALTA
DORMITORIO SUITE: proyectado para ofrecer comodidad y funcionalidad, garantizando un ambiente agradable y confortable, con su baño particular que asegura privacidad.
-DORMITORIOS SECUNDARIOS: equipados con placares empotrados de estilo moderno y amplia capacidad de guardado, estos espacios comparten un baño completo de uso común.
TERRAZA
QUINCHO : amplio espacio equipado con parrilla, mesada con bacha y lugar suficiente para colocar una gran mesa, ideal para reuniones. Un ambiente pensado para disfrutar en compañía, combinando funcionalidad y confort.
SOLARIUM Y PÌSCINA: este espacio invita a relajarse y disfrutar de momentos únicos en la privacidad de tu hogar.
El diseño de esta terraza propone un entorno versátil y acogedor, pensado tanto para momentos de descanso como para reuniones y actividades sociales.
PISOS Y REVESTIMIENTOS
Pisos de Porcelanato, revestimientos y zócalos EPS de primera línea.
CLIMATIZACIÓN
Se prevé la pre instalación de aires acondicionados.
Se prevé la instalación de calefacción con instalación de Caldera.
MOBILIARIO DE COCINA
Alacena y bajo mesada de diseño con iluminación en mobiliario. Mesada de Silestone o similar calidad.
Bacha de acero inoxidable con grifería de primera línea. Espacio disponible para purificador y/o extractor de cocina. Horno eléctrico y anafe a gas embutido.
PLACARES, DORMITORIOS Y BAÑOS
Placares completos con frentes corredizos o de abrir. Diseño interior con estantes, cajones y barrales.
Los baños cuentan con receptores para sus duchas, vanity completo y espejo.
Sanitarios y griferías de primera marca.
JARDÍN Y TERRAZA
Jardín con intervención de paisajismo en Planta Baja.
En la última planta, un quincho con espacio para parrilla, mesada con bacha y toilette.
En el exterior se ubica una pergola, la pileta y un solárium con intervención entre canteros y verde.
- KP477972 - KPT040112 -
- Publicado usando KiteProp CRM Inmobiliario
Ubicación
Brown 2761. Rosario. Santa Fe.
Datos de contacto
GARGARELLA INMOBILIARIA
Dirección: Corrientes 763 - 6° piso Of. 3
Ciudad: Rosario
Provincia: Santa Fe
Teléfono: 0341 - 4494637
Celular: 0341 - 153929779
eMail: Ver Mail
Instagram: @gargarella.inmobiliaria
Dirección: Corrientes 763 - 6° piso Of. 3
Ciudad: Rosario
Provincia: Santa Fe
Teléfono: 0341 - 4494637
Celular: 0341 - 153929779
eMail: Ver Mail
Instagram: @gargarella.inmobiliaria
Contactar por WhatsApp
Contactar por e-mail
Descripción de la propiedad
Operación: Venta
Propiedad: Casas
Provincia: Santa Fe
Ciudad: Rosario
Dirección: BROWN 2761
Superficie: 223 m2
Dormitorios: 3 dormitorios o mas
Cantidad de Baños: 2 baños
Vendedor: Inmobiliaria
Propiedad: Casas
Provincia: Santa Fe
Ciudad: Rosario
Dirección: BROWN 2761
Superficie: 223 m2
Dormitorios: 3 dormitorios o mas
Cantidad de Baños: 2 baños
Vendedor: Inmobiliaria
Precio
U$S 295.000
Imprimir propiedad BienesRosario.com no comercializa la propiedad que aquí se anuncia y no es responsable por la transacción que se realice entre las partes. Verifique los datos de contacto del usuario para comunicarse con él.
Denunciar esta propiedad
ATENCIÓN ESTAFAS!
BienesRosario.com no contacta telefónicamente a sus usuarios.
BienesRosario.com no contacta telefónicamente a sus usuarios.

















