2 Dormitorios - Sector C
Descripción ampliada
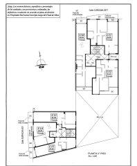
Departamento 3 ambientes a estrenar con posesión estimada junio 2026. Ubicado al contrafrente, súper luminoso , con cocina semi integrada ? que optimiza el espacio y conecta con el estar-comedor, ideal para vivir cómodo y funcional. Cuenta con 2 dormitorios ? y 2 baños completos , ofreciendo practicidad para la vida diaria.
Dispone de balcón para disfrutar aire y luz natural , y calefacción por radiadores ? para un confort térmico parejo todo el año. Situado en el 2º piso , con una superficie total y cubierta de 74,92 m², brinda una distribución equilibrada y moderna.
Departamento ?2 Dormitorios - Sector C?, dentro de un edificio de categoría en desarrollo, con entrega prevista en 2026 ?. Ideal tanto para vivir como para invertir, combinando diseño, eficiencia y una excelente calidad constructiva.
Consultanos para más info y coordinar una visita a la obra .
Toda la información del aviso, incluyendo medidas, precio, impuestos, servicios, etc. son estimativos, sujetos a modificación y no vinculantes, según lo dispuesto en el art. 973, Cód. Civ. y Com.
- KP464723 - KPT040315 -
- Publicado usando KiteProp CRM Inmobiliario
Dispone de balcón para disfrutar aire y luz natural , y calefacción por radiadores ? para un confort térmico parejo todo el año. Situado en el 2º piso , con una superficie total y cubierta de 74,92 m², brinda una distribución equilibrada y moderna.
Departamento ?2 Dormitorios - Sector C?, dentro de un edificio de categoría en desarrollo, con entrega prevista en 2026 ?. Ideal tanto para vivir como para invertir, combinando diseño, eficiencia y una excelente calidad constructiva.
Consultanos para más info y coordinar una visita a la obra .
Toda la información del aviso, incluyendo medidas, precio, impuestos, servicios, etc. son estimativos, sujetos a modificación y no vinculantes, según lo dispuesto en el art. 973, Cód. Civ. y Com.
- KP464723 - KPT040315 -
- Publicado usando KiteProp CRM Inmobiliario
Ubicación
Cordoba 2981. Rosario. Santa Fe.
Datos de contacto
Contactar por WhatsApp
Contactar por e-mail
Descripción de la propiedad
Operación: Venta
Propiedad: Departamentos
Provincia: Santa Fe
Ciudad: Rosario
Dirección: Cordoba 2981
Superficie: 75 m2
Dormitorios: 2 dormitorios
Cantidad de Baños: 2 baños
A estrenar: Si
Vendedor: Inmobiliaria
Propiedad: Departamentos
Provincia: Santa Fe
Ciudad: Rosario
Dirección: Cordoba 2981
Superficie: 75 m2
Dormitorios: 2 dormitorios
Cantidad de Baños: 2 baños
A estrenar: Si
Vendedor: Inmobiliaria
Precio
U$S 135.000
Imprimir propiedad BienesRosario.com no comercializa la propiedad que aquí se anuncia y no es responsable por la transacción que se realice entre las partes. Verifique los datos de contacto del usuario para comunicarse con él.
Denunciar esta propiedad
ATENCIÓN ESTAFAS!
BienesRosario.com no contacta telefónicamente a sus usuarios.
BienesRosario.com no contacta telefónicamente a sus usuarios.































