Junin 1035 - Galpon 1100m2
Descripción ampliada
Alquiler galpón ideal para logística, depósito e industria liviana, con excelente conectividad: sobre Junín 1035, a pocos metros de la confluencia de Av. Avellaneda, Av. Alberdi y Av. Junín, y con acceso rápido a circunvalación y arterias principales de la ciudad.
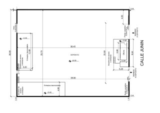
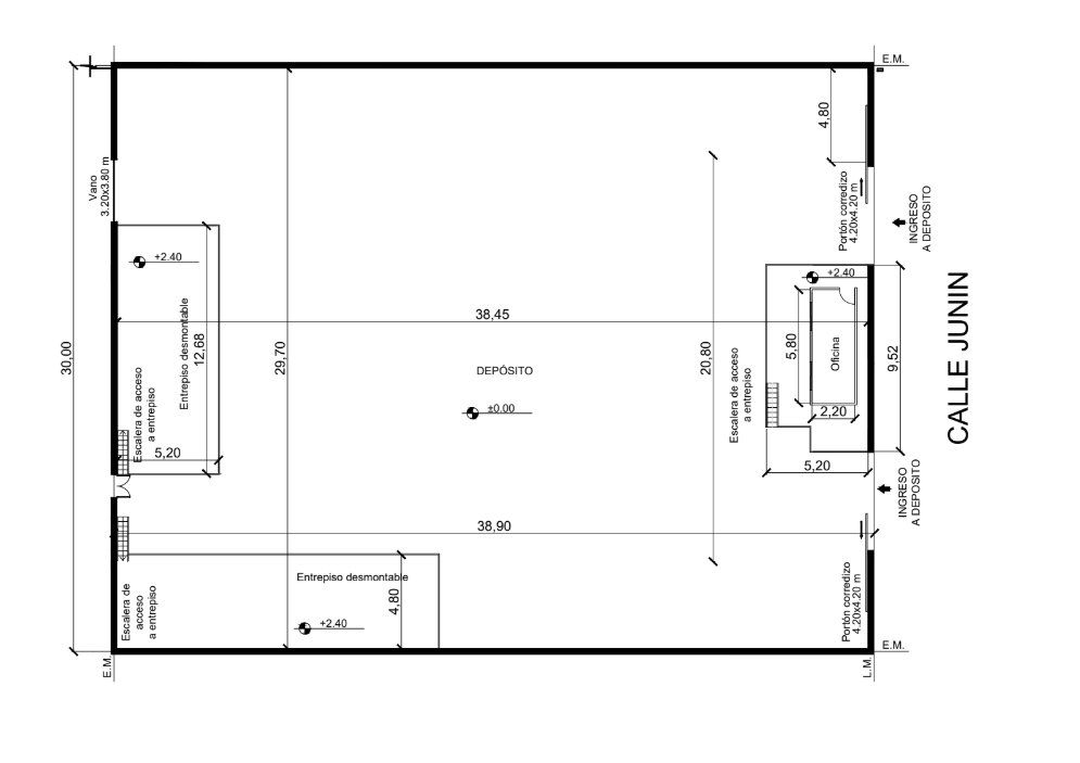
El inmueble cuenta con 1.131 m² de superficie cubierta sobre terreno de 1.167 m², en nave parabólica sin columnas. Posee altura de techo 10,5 m, doble portón de ingreso para camiones (4,20 x 4,20 m), piso de hormigón de 24 cm con malla en sector de ingreso, iluminación LED, y ventilación mediante extractores eólicos + ventilación trasera.
Además, dispone de oficinas y pañol, alarma instalada, agua corriente, y electricidad trifásica 16 kVA. Conexión de gas disponible (no conectada). Antigüedad aproximada: 40 años.
Zonificación: AT3-8, apta para depósitos, industrias categorías 1 y 2 y retail. Entorno mixto industrial/logístico y residencial.
- Valor estimado de alquiler mensual: USD 4300 + IVA (contrato pesificado, dólar bna
tipo vendedor)
- Plazo locación: 24 o 36 meses (plazo sugerido)
- Ajustes valores: cuatrimestral por índice IPC (o a convenir entre las partes)
- Impuestos: API, TGI, y servicios a cargo del LOCATARIO.
- Garantías: seguro de caución y/o Fiadores propietarios.
- KP480185 - KPT021303 -
- Publicado usando KiteProp CRM Inmobiliario
El inmueble cuenta con 1.131 m² de superficie cubierta sobre terreno de 1.167 m², en nave parabólica sin columnas. Posee altura de techo 10,5 m, doble portón de ingreso para camiones (4,20 x 4,20 m), piso de hormigón de 24 cm con malla en sector de ingreso, iluminación LED, y ventilación mediante extractores eólicos + ventilación trasera.
Además, dispone de oficinas y pañol, alarma instalada, agua corriente, y electricidad trifásica 16 kVA. Conexión de gas disponible (no conectada). Antigüedad aproximada: 40 años.
Zonificación: AT3-8, apta para depósitos, industrias categorías 1 y 2 y retail. Entorno mixto industrial/logístico y residencial.
- Valor estimado de alquiler mensual: USD 4300 + IVA (contrato pesificado, dólar bna
tipo vendedor)
- Plazo locación: 24 o 36 meses (plazo sugerido)
- Ajustes valores: cuatrimestral por índice IPC (o a convenir entre las partes)
- Impuestos: API, TGI, y servicios a cargo del LOCATARIO.
- Garantías: seguro de caución y/o Fiadores propietarios.
- KP480185 - KPT021303 -
- Publicado usando KiteProp CRM Inmobiliario
Ubicación
Junin 1035. LudueÑa ,est. Santa Fe.
Datos de contacto
Arpini Inmobiliaria
Ciudad: Rosario
Provincia: Santa Fe
Celular: 0341 - 156449883
eMail: Ver Mail
Instagram: @arpini
Ciudad: Rosario
Provincia: Santa Fe
Celular: 0341 - 156449883
eMail: Ver Mail
Instagram: @arpini
Contactar por WhatsApp
Contactar por e-mail
Descripción de la propiedad
Operación: Alquiler
Propiedad: Galpones / Depósitos
Provincia: Santa Fe
Ciudad: LudueÑa ,est.
Dirección: Junin 1035
Superficie: 1.131 m2
Vendedor: Inmobiliaria
Propiedad: Galpones / Depósitos
Provincia: Santa Fe
Ciudad: LudueÑa ,est.
Dirección: Junin 1035
Superficie: 1.131 m2
Vendedor: Inmobiliaria
Precio
U$S 4.300
Imprimir propiedad BienesRosario.com no comercializa la propiedad que aquí se anuncia y no es responsable por la transacción que se realice entre las partes. Verifique los datos de contacto del usuario para comunicarse con él.
Denunciar esta propiedad
ATENCIÓN ESTAFAS!
BienesRosario.com no contacta telefónicamente a sus usuarios.
BienesRosario.com no contacta telefónicamente a sus usuarios.



















