Casa interna 1 dormitorio en venta Cochabamba 3900
Descripción ampliada
Venta Cochabamba 3900
Casa interna de 1 dormitorio con patio.
Pasillo en condominio con la propiedad frentista.
Desde el pasillo se ingresa a un patio seco de 25m2 aprox.
Living comedor, cocina comedor, baño completo y 1 dormitorio amplio con ventana al patio.
Terraza accesible, posibilidad de ampliar en planta alta.
No está en PH. es casa interna con pasillo en condominio.
Todos los servicios.
Lista para escriturar.
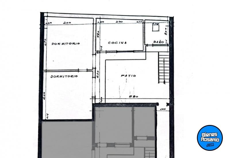
Medidas aproximadas de ambientes:
Patio 5.40 x 4.30
Estar 4.70 x 4.00
Dormitorio 4.00 x 4.00
Cocina 2.80 x 3.90
Baño 2.00 x 2.00
———————————————
Toda la información y medidas informadas son aproximadas y deberán ratificarse con la documentación pertinente y no compromete contractualmente a nuestra empresa. Los gastos, impuestos, servicios y/o expensas expresadas, refieren a la última información recabada y deberán confirmarse. Fotografías no vinculantes ni contractuales.
Casa interna de 1 dormitorio con patio.
Pasillo en condominio con la propiedad frentista.
Desde el pasillo se ingresa a un patio seco de 25m2 aprox.
Living comedor, cocina comedor, baño completo y 1 dormitorio amplio con ventana al patio.
Terraza accesible, posibilidad de ampliar en planta alta.
No está en PH. es casa interna con pasillo en condominio.
Todos los servicios.
Lista para escriturar.
Medidas aproximadas de ambientes:
Patio 5.40 x 4.30
Estar 4.70 x 4.00
Dormitorio 4.00 x 4.00
Cocina 2.80 x 3.90
Baño 2.00 x 2.00
———————————————
Toda la información y medidas informadas son aproximadas y deberán ratificarse con la documentación pertinente y no compromete contractualmente a nuestra empresa. Los gastos, impuestos, servicios y/o expensas expresadas, refieren a la última información recabada y deberán confirmarse. Fotografías no vinculantes ni contractuales.
Ubicación
Cochabamba 3916. Rosario. Santa Fe.
Datos de contacto
CI Mariano Lago
Dirección: Sarmiento 1726
Ciudad: Rosario
Provincia: Santa Fe
Celular: 0341 - 156488940
eMail: Ver Mail
Instagram: @cimarianolago
Dirección: Sarmiento 1726
Ciudad: Rosario
Provincia: Santa Fe
Celular: 0341 - 156488940
eMail: Ver Mail
Instagram: @cimarianolago
Contactar por WhatsApp
Descripción de la propiedad
Operación: Venta
Propiedad: Departamentos de pasillo
Provincia: Santa Fe
Ciudad: Rosario
Dirección: Cochabamba 3916
Superficie: 61 m2
Dormitorios: 1 dormitorio
Cantidad de Baños: 1 baño
Patio: Si
Vendedor: Inmobiliaria
Propiedad: Departamentos de pasillo
Provincia: Santa Fe
Ciudad: Rosario
Dirección: Cochabamba 3916
Superficie: 61 m2
Dormitorios: 1 dormitorio
Cantidad de Baños: 1 baño
Patio: Si
Vendedor: Inmobiliaria
Precio
U$S 40.000
Imprimir propiedad BienesRosario.com no comercializa la propiedad que aquí se anuncia y no es responsable por la transacción que se realice entre las partes. Verifique los datos de contacto del usuario para comunicarse con él.
Denunciar esta propiedad
ATENCIÓN ESTAFAS!
BienesRosario.com no contacta telefónicamente a sus usuarios.
BienesRosario.com no contacta telefónicamente a sus usuarios.


























