Planta Alta en venta de 2 dormitorios Zeballos 3900
Descripción ampliada
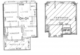
Zeballos 3911 planta alta en venta de 2 dormitorios
Ingreso independiente desde la calle.
Living comedor con ventana a calle Zeballos.
Baño completo con ducha y ventilación natural.
Dormitorio principal al frente, dormitorio secundario más chico.
Cocina separada, ambiente en desnivel tipo estudio/escritorio.
Salida al patio de uso exclusivo de la unidad, escalera que accede a la terraza con lavadero cubierto y parrillero.
Antigüedad: 50 años aprox
Superficie cubierta: 83m2 aprox
Superficie descubierta: 17,79 m2 patio y 74,86 m2 terraza.
La unidad está en PH con la casa de planta baja.
—————————————————————————————————————————————
Toda la información y medidas informadas son aproximadas y deberán ratificarse con la documentación pertinente y no compromete contractualmente a nuestra empresa. Los gastos, impuestos, servicios y/o expensas expresadas, refieren a la última información recabada y deberán confirmarse. Fotografías no vinculantes ni contractuales.
Ingreso independiente desde la calle.
Living comedor con ventana a calle Zeballos.
Baño completo con ducha y ventilación natural.
Dormitorio principal al frente, dormitorio secundario más chico.
Cocina separada, ambiente en desnivel tipo estudio/escritorio.
Salida al patio de uso exclusivo de la unidad, escalera que accede a la terraza con lavadero cubierto y parrillero.
Antigüedad: 50 años aprox
Superficie cubierta: 83m2 aprox
Superficie descubierta: 17,79 m2 patio y 74,86 m2 terraza.
La unidad está en PH con la casa de planta baja.
—————————————————————————————————————————————
Toda la información y medidas informadas son aproximadas y deberán ratificarse con la documentación pertinente y no compromete contractualmente a nuestra empresa. Los gastos, impuestos, servicios y/o expensas expresadas, refieren a la última información recabada y deberán confirmarse. Fotografías no vinculantes ni contractuales.
Ubicación
Zeballos 3911. Rosario. Santa Fe.
Datos de contacto
CI Mariano Lago
Dirección: Sarmiento 1726
Ciudad: Rosario
Provincia: Santa Fe
Celular: 0341 - 156488940
eMail: Ver Mail
Instagram: @cimarianolago
Dirección: Sarmiento 1726
Ciudad: Rosario
Provincia: Santa Fe
Celular: 0341 - 156488940
eMail: Ver Mail
Instagram: @cimarianolago
Contactar por WhatsApp
Descripción de la propiedad
Operación: Venta
Propiedad: Casas
Provincia: Santa Fe
Ciudad: Rosario
Dirección: Zeballos 3911
Superficie: 83 m2
Dormitorios: 2 dormitorios
Cantidad de Baños: 1 baño
Patio: Si
Vendedor: Inmobiliaria
Propiedad: Casas
Provincia: Santa Fe
Ciudad: Rosario
Dirección: Zeballos 3911
Superficie: 83 m2
Dormitorios: 2 dormitorios
Cantidad de Baños: 1 baño
Patio: Si
Vendedor: Inmobiliaria
Precio
U$S 79.000
Imprimir propiedad BienesRosario.com no comercializa la propiedad que aquí se anuncia y no es responsable por la transacción que se realice entre las partes. Verifique los datos de contacto del usuario para comunicarse con él.
Denunciar esta propiedad
ATENCIÓN ESTAFAS!
BienesRosario.com no contacta telefónicamente a sus usuarios.
BienesRosario.com no contacta telefónicamente a sus usuarios.




























