1 Dormitorio B - Piso 3
Descripción ampliada
Estrená tu próximo hogar en un moderno 2 ambientes en piso 3, ideal para quienes buscan confort y practicidad en un espacio funcional y bien distribuido
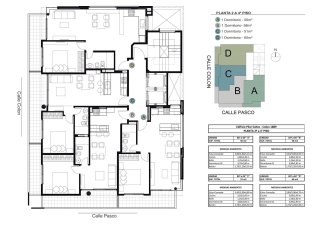
Este departamento de 57,5 m² totales ofrece:
- 1 dormitorio cómodo y luminoso ?
- Living-comedor versátil para crear tu ambiente ideal ?
- 1 baño completo
- Ubicado en un edificio de 6 pisos, con la tranquilidad de estar en el tercer nivel
- Expensas: 0 (en moneda USD)
- Entrega a estrenar: 03/12/2025 ?
Perfecto para primera vivienda o inversión, combina practicidad y diseño en cada detalle. La superficie cubierta te permite disfrutar de ambientes amplios y fáciles de amoblar, con circulación natural y espacios listos para acompañar tu estilo de vida.
Si buscás un departamento nuevo, cómodo y con excelente proyección, esta es tu oportunidad
Consultanos para más info y coordinemos una visita
Toda la información del aviso, incluyendo medidas, precio, impuestos, servicios, etc. son estimativos, sujetos a modificación y no vinculantes, según lo dispuesto en el art. 973, Cód. Civ. y Com.
- KP461389 - KPT030318 -
- Publicado usando KiteProp CRM Inmobiliario
Este departamento de 57,5 m² totales ofrece:
- 1 dormitorio cómodo y luminoso ?
- Living-comedor versátil para crear tu ambiente ideal ?
- 1 baño completo
- Ubicado en un edificio de 6 pisos, con la tranquilidad de estar en el tercer nivel
- Expensas: 0 (en moneda USD)
- Entrega a estrenar: 03/12/2025 ?
Perfecto para primera vivienda o inversión, combina practicidad y diseño en cada detalle. La superficie cubierta te permite disfrutar de ambientes amplios y fáciles de amoblar, con circulación natural y espacios listos para acompañar tu estilo de vida.
Si buscás un departamento nuevo, cómodo y con excelente proyección, esta es tu oportunidad
Consultanos para más info y coordinemos una visita
Toda la información del aviso, incluyendo medidas, precio, impuestos, servicios, etc. son estimativos, sujetos a modificación y no vinculantes, según lo dispuesto en el art. 973, Cód. Civ. y Com.
- KP461389 - KPT030318 -
- Publicado usando KiteProp CRM Inmobiliario
Ubicación
Colon 1889. Rosario. Santa Fe.
Datos de contacto
Contactar por WhatsApp
Contactar por e-mail
Descripción de la propiedad
Operación: Venta
Propiedad: Departamentos
Provincia: Santa Fe
Ciudad: Rosario
Dirección: Colon 1889
Superficie: 58 m2
Dormitorios: 1 dormitorio
Cantidad de Baños: 1 baño
A estrenar: Si
Vendedor: Inmobiliaria
Propiedad: Departamentos
Provincia: Santa Fe
Ciudad: Rosario
Dirección: Colon 1889
Superficie: 58 m2
Dormitorios: 1 dormitorio
Cantidad de Baños: 1 baño
A estrenar: Si
Vendedor: Inmobiliaria
Precio
U$S 79.000
Imprimir propiedad BienesRosario.com no comercializa la propiedad que aquí se anuncia y no es responsable por la transacción que se realice entre las partes. Verifique los datos de contacto del usuario para comunicarse con él.
Denunciar esta propiedad
ATENCIÓN ESTAFAS!
BienesRosario.com no contacta telefónicamente a sus usuarios.
BienesRosario.com no contacta telefónicamente a sus usuarios.





















