Nave Logistica 3600m2 + Oficinas - Juan Pablo II 7962
Descripción ampliada
Nave de gran porte con acceso directo a Circunvalación y excelente funcionalidad logística.
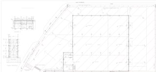
Ubicada en Juan Pablo II 7962, Rosario, frente a la avenida de Circunvalación, cuenta con 3.600 m² cubiertos en una sola planta + 100 m² de oficinas distribuidas en dos niveles, sobre un terreno total de 7.000 m².
La construcción es premoldeado de hormigón tipo Astori, con altura libre al techo de 8,60 m (viga a 7,40 m), piso de hormigón llaneado de alto tránsito en muy buen estado, iluminación mixta LED + ventanas translúcidas en cubierta y extractores eólicos para ventilación natural. Dispone de red contra incendio completa (hidrantes y nichos perimetrales + columnas), columnas reforzadas preparadas para futura instalación de puente grúa y pendiente mínima para drenaje.
Cuenta con 6 portones corredizos (3 al frente y 3 al contrafrente) de 4,50 m de alto × 5,00 m de ancho, lo que permite circulación simultánea de camiones en ambos frentes. Amplia playa de maniobras en contrafrente + sector de estacionamiento utilitario. Acceso principal con garita de seguridad.
El sector administrativo incluye oficinas amplias en dos plantas, comedor y vestuarios completos para personal. Servicios: electricidad trifásica, gas natural, teléfono e internet.
Ubicación estratégica con ingreso y egreso directo a Circunvalación, rápida conexión a rutas nacionales y mínima interferencia urbana para operaciones de alto volumen.
Condiciones comerciales
Contrato en dólares ? ajuste anual 5%
Plazo mínimo 24 meses
DISPONIBLE A PARTIR DE JUNIO
- KP495455 - KPT032806 -
- Publicado usando KiteProp CRM Inmobiliario
Ubicada en Juan Pablo II 7962, Rosario, frente a la avenida de Circunvalación, cuenta con 3.600 m² cubiertos en una sola planta + 100 m² de oficinas distribuidas en dos niveles, sobre un terreno total de 7.000 m².
La construcción es premoldeado de hormigón tipo Astori, con altura libre al techo de 8,60 m (viga a 7,40 m), piso de hormigón llaneado de alto tránsito en muy buen estado, iluminación mixta LED + ventanas translúcidas en cubierta y extractores eólicos para ventilación natural. Dispone de red contra incendio completa (hidrantes y nichos perimetrales + columnas), columnas reforzadas preparadas para futura instalación de puente grúa y pendiente mínima para drenaje.
Cuenta con 6 portones corredizos (3 al frente y 3 al contrafrente) de 4,50 m de alto × 5,00 m de ancho, lo que permite circulación simultánea de camiones en ambos frentes. Amplia playa de maniobras en contrafrente + sector de estacionamiento utilitario. Acceso principal con garita de seguridad.
El sector administrativo incluye oficinas amplias en dos plantas, comedor y vestuarios completos para personal. Servicios: electricidad trifásica, gas natural, teléfono e internet.
Ubicación estratégica con ingreso y egreso directo a Circunvalación, rápida conexión a rutas nacionales y mínima interferencia urbana para operaciones de alto volumen.
Condiciones comerciales
Contrato en dólares ? ajuste anual 5%
Plazo mínimo 24 meses
DISPONIBLE A PARTIR DE JUNIO
- KP495455 - KPT032806 -
- Publicado usando KiteProp CRM Inmobiliario
Ubicación
Juan Pablo Ii 7962. Rosario. Santa Fe.
Datos de contacto
Arpini Inmobiliaria
Ciudad: Rosario
Provincia: Santa Fe
Celular: 0341 - 156449883
eMail: Ver Mail
Instagram: @arpini
Ciudad: Rosario
Provincia: Santa Fe
Celular: 0341 - 156449883
eMail: Ver Mail
Instagram: @arpini
Contactar por WhatsApp
Contactar por e-mail
Descripción de la propiedad
Operación: Alquiler
Propiedad: Galpones / Depósitos
Provincia: Santa Fe
Ciudad: Rosario
Dirección: Juan Pablo II 7962
Superficie: 3.600 m2
Vendedor: Inmobiliaria
Propiedad: Galpones / Depósitos
Provincia: Santa Fe
Ciudad: Rosario
Dirección: Juan Pablo II 7962
Superficie: 3.600 m2
Vendedor: Inmobiliaria
Precio
U$S 23.500
Imprimir propiedad BienesRosario.com no comercializa la propiedad que aquí se anuncia y no es responsable por la transacción que se realice entre las partes. Verifique los datos de contacto del usuario para comunicarse con él.
Denunciar esta propiedad
ATENCIÓN ESTAFAS!
BienesRosario.com no contacta telefónicamente a sus usuarios.
BienesRosario.com no contacta telefónicamente a sus usuarios.





















