Casa en El Plumerillo al 3000, Pueblo Esther
Descripción ampliada
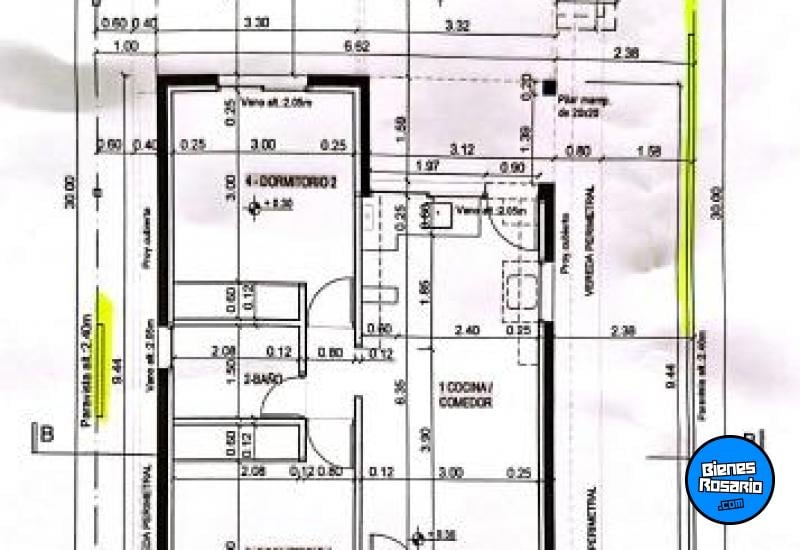
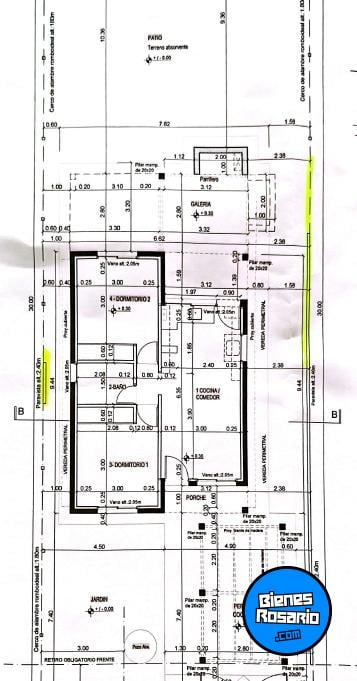
Casa estilo chalet a estrenar desarrollada en una planta, con un dise駉 funcional y luminoso. Cuenta con dos dormitorios con espacio previsto para placares empotrados y爑n ba駉 completo con recept醕ulo de ducha y ventilaci髇 natural, lo que garantiza buena iluminaci髇 y circulaci髇 de aire.
El sector social se compone de un c髆odo estar朿omedor con cocina integrada, equipada con mobiliario moderno que optimiza el espacio y la funcionalidad.
En el exterior, la propiedad ofrece una galer韆 trasera con parrillero techado, ideal para disfrutar de reuniones y momentos al aire libre. Adem醩, cuenta con una p閞gola destinada a cochera para un veh韈ulo, con posibilidad de cerramiento o techado futuro.
49.72m2 cubiertos exclusivos + 17,40m2 de p閞gola + 28.52 m2 de galer韆 y porche.
Ubicada en la manzana H lote 23 = 10 x 30 = 300m2 / A 100 metros de Ruta A012.
Lote escriturado, la casa cuenta con final de obra otorgado, con cerco perimetral y el loteo no cuenta con gas natural ni cloacas.
El sector social se compone de un c髆odo estar朿omedor con cocina integrada, equipada con mobiliario moderno que optimiza el espacio y la funcionalidad.
En el exterior, la propiedad ofrece una galer韆 trasera con parrillero techado, ideal para disfrutar de reuniones y momentos al aire libre. Adem醩, cuenta con una p閞gola destinada a cochera para un veh韈ulo, con posibilidad de cerramiento o techado futuro.
49.72m2 cubiertos exclusivos + 17,40m2 de p閞gola + 28.52 m2 de galer韆 y porche.
Ubicada en la manzana H lote 23 = 10 x 30 = 300m2 / A 100 metros de Ruta A012.
Lote escriturado, la casa cuenta con final de obra otorgado, con cerco perimetral y el loteo no cuenta con gas natural ni cloacas.
Ubicación
Sarmiento El Plumerillo. Pueblo Esther. Santa Fe.
Datos de contacto
Contactar por WhatsApp
Descripción de la propiedad
Operación: Venta
Propiedad: Casas
Provincia: Santa Fe
Ciudad: Pueblo Esther
Dirección: Sarmiento El Plumerillo
Superficie: 95 m2
Dormitorios: 2 dormitorios
Cantidad de Baños: 1 baño
Patio: Si
A estrenar: Si
Vendedor: Inmobiliaria
Propiedad: Casas
Provincia: Santa Fe
Ciudad: Pueblo Esther
Dirección: Sarmiento El Plumerillo
Superficie: 95 m2
Dormitorios: 2 dormitorios
Cantidad de Baños: 1 baño
Patio: Si
A estrenar: Si
Vendedor: Inmobiliaria
Precio
U$S 65.000
Imprimir propiedad BienesRosario.com no comercializa la propiedad que aquí se anuncia y no es responsable por la transacción que se realice entre las partes. Verifique los datos de contacto del usuario para comunicarse con él.
Denunciar esta propiedad
ATENCIÓN ESTAFAS!
BienesRosario.com no contacta telefónicamente a sus usuarios.
BienesRosario.com no contacta telefónicamente a sus usuarios.































