Monoambiente - Sector A
Descripción ampliada
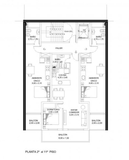
Monoambiente - Sector A en piso 10, a estrenar en 2025 Ideal para quienes buscan practicidad, diseño y confort en un solo espacio. Con 41 m² totales y cubiertos, ofrece una disposición moderna y funcional que se adapta perfecto a tu día a día ?.
Ambiente único amplio y luminoso, pensado para integrar living, descanso y trabajo con estilo. Baño completo moderno . Ubicado en un edificio de 11 pisos, este monoambiente en altura te brinda excelentes vistas y la tranquilidad de un hogar a estrenar .
Su distribución optimiza cada metro, ideal para primera vivienda, inversión o pied-à-terre. Año de construcción 2025: estrenás vos, con todo el valor de lo nuevo y la tranquilidad de elegir cada detalle a tu gusto .
Puntos destacados:
- Monoambiente funcional de 41 m²
- Piso 10 con vistas abiertas
- Baño completo moderno
- Edificio de 11 pisos
- Entrega 2025, unidad a estrenar
Si buscás comodidad, practicidad y una ubicación urbana con acceso a servicios, este monoambiente es tu próxima movida inteligente. Consultanos para coordinar visita y conocer más detalles
Toda la información del aviso, incluyendo medidas, precio, impuestos, servicios, etc. son estimativos, sujetos a modificación y no vinculantes, según lo dispuesto en el art. 973, Cód. Civ. y Com.
- KP478190 - KPT041721 -
- Publicado usando KiteProp CRM Inmobiliario
Ambiente único amplio y luminoso, pensado para integrar living, descanso y trabajo con estilo. Baño completo moderno . Ubicado en un edificio de 11 pisos, este monoambiente en altura te brinda excelentes vistas y la tranquilidad de un hogar a estrenar .
Su distribución optimiza cada metro, ideal para primera vivienda, inversión o pied-à-terre. Año de construcción 2025: estrenás vos, con todo el valor de lo nuevo y la tranquilidad de elegir cada detalle a tu gusto .
Puntos destacados:
- Monoambiente funcional de 41 m²
- Piso 10 con vistas abiertas
- Baño completo moderno
- Edificio de 11 pisos
- Entrega 2025, unidad a estrenar
Si buscás comodidad, practicidad y una ubicación urbana con acceso a servicios, este monoambiente es tu próxima movida inteligente. Consultanos para coordinar visita y conocer más detalles
Toda la información del aviso, incluyendo medidas, precio, impuestos, servicios, etc. son estimativos, sujetos a modificación y no vinculantes, según lo dispuesto en el art. 973, Cód. Civ. y Com.
- KP478190 - KPT041721 -
- Publicado usando KiteProp CRM Inmobiliario
Ubicación
Av. Francia 817. Rosario. Santa Fe.
Datos de contacto
Contactar por WhatsApp
Contactar por e-mail
Descripción de la propiedad
Operación: Venta
Propiedad: Departamentos
Provincia: Santa Fe
Ciudad: Rosario
Dirección: av. Francia 817
Superficie: 41 m2
Dormitorios: Monoambiente
Cantidad de Baños: 1 baño
A estrenar: Si
Vendedor: Inmobiliaria
Propiedad: Departamentos
Provincia: Santa Fe
Ciudad: Rosario
Dirección: av. Francia 817
Superficie: 41 m2
Dormitorios: Monoambiente
Cantidad de Baños: 1 baño
A estrenar: Si
Vendedor: Inmobiliaria
Precio
U$S 69.628
Imprimir propiedad BienesRosario.com no comercializa la propiedad que aquí se anuncia y no es responsable por la transacción que se realice entre las partes. Verifique los datos de contacto del usuario para comunicarse con él.
Denunciar esta propiedad
ATENCIÓN ESTAFAS!
BienesRosario.com no contacta telefónicamente a sus usuarios.
BienesRosario.com no contacta telefónicamente a sus usuarios.



















