CENTENO 720
Descripción ampliada
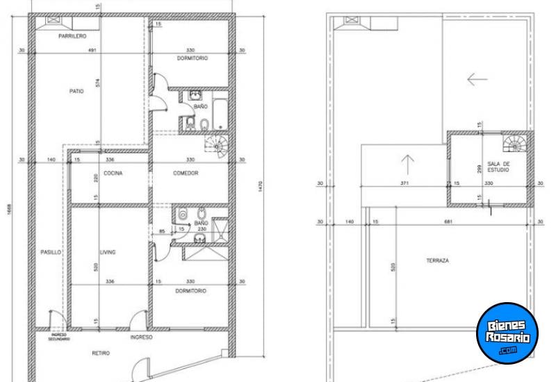
Casa en venta al frente de 2 dormitorios con escritorio desarrollada en 2 plantas con patio y terraza. Ubicada en Centeno 720, Barrio General Las Heras, Rosario. Apta crédito. De 180 m2 totales. 50 años de antiguedad. Doble ingreso.
Ingreso frente a un patio seco cochera descubierta.
Planta baja: Living Estar. Cocina separada. Comedor distribuidor con escalera interna. 2 dormitorios uno al frente y otro contrafrente uno con Placard. Amplio patio seco con parrilla. 2 Baños.
Planta Alta: sala de estudio o tercer dormitorio con salida a terraza exclusiva.
La información y medidas provistas deberán ratificarse con la documentación correspondiente y no comprometen contractualmente a nuestra inmobiliaria ya que es a titulo informativo como asimismo los gastos que refieren a la última información recabada y deben confirmarse.
La publicación de este inmueble es a solo título informativo, pues la venta de la propiedad está supeditada a que el propietario cumplimente el trámite ante la AFIP para la obtención del Número de COTI correspondiente.
Las fotos no son vinculantes ni contractuales.-
Ingreso frente a un patio seco cochera descubierta.
Planta baja: Living Estar. Cocina separada. Comedor distribuidor con escalera interna. 2 dormitorios uno al frente y otro contrafrente uno con Placard. Amplio patio seco con parrilla. 2 Baños.
Planta Alta: sala de estudio o tercer dormitorio con salida a terraza exclusiva.
La información y medidas provistas deberán ratificarse con la documentación correspondiente y no comprometen contractualmente a nuestra inmobiliaria ya que es a titulo informativo como asimismo los gastos que refieren a la última información recabada y deben confirmarse.
La publicación de este inmueble es a solo título informativo, pues la venta de la propiedad está supeditada a que el propietario cumplimente el trámite ante la AFIP para la obtención del Número de COTI correspondiente.
Las fotos no son vinculantes ni contractuales.-
Ubicación
Centeno 720. Rosario. Santa Fe.
Datos de contacto
BROC Bienes Raíces
Dirección: Chacabuco 1384
Ciudad: Rosario
Provincia: Santa Fe
Teléfono: 0341 - 4252142
Celular: 0341 - 156440055
eMail: Ver Mail
Dirección: Chacabuco 1384
Ciudad: Rosario
Provincia: Santa Fe
Teléfono: 0341 - 4252142
Celular: 0341 - 156440055
eMail: Ver Mail
Contactar por WhatsApp
Descripción de la propiedad
Operación: Venta
Propiedad: Casas
Provincia: Santa Fe
Ciudad: Rosario
Dirección: Centeno 720
Superficie: 180 m2
Dormitorios: 2 dormitorios
Cantidad de Baños: 2 baños
Cocheras: 1 Cochera
Patio: Si
Vendedor: Inmobiliaria
Propiedad: Casas
Provincia: Santa Fe
Ciudad: Rosario
Dirección: Centeno 720
Superficie: 180 m2
Dormitorios: 2 dormitorios
Cantidad de Baños: 2 baños
Cocheras: 1 Cochera
Patio: Si
Vendedor: Inmobiliaria
Precio
U$S 89.000
Imprimir propiedad BienesRosario.com no comercializa la propiedad que aquí se anuncia y no es responsable por la transacción que se realice entre las partes. Verifique los datos de contacto del usuario para comunicarse con él.
Denunciar esta propiedad
ATENCIÓN ESTAFAS!
BienesRosario.com no contacta telefónicamente a sus usuarios.
BienesRosario.com no contacta telefónicamente a sus usuarios.































