Venta/Permuta Departamento Dos Dormitorios Suite Terraza Excluviva Con Parrillero, Echesortu.
Descripción ampliada
Venta/Permuta Departamento Dos Dormitorios Suite Terraza Excluviva Con Parrillero, Echesortu.
Ubicado a 100 metros de Av Avellaneda y 100 metros de Avenida Pellegrini, se ubica este edificio de planta baja y dos pisos por escaleras
La unidad se encuentra en la segunda planta al contrafrente con orientacion este
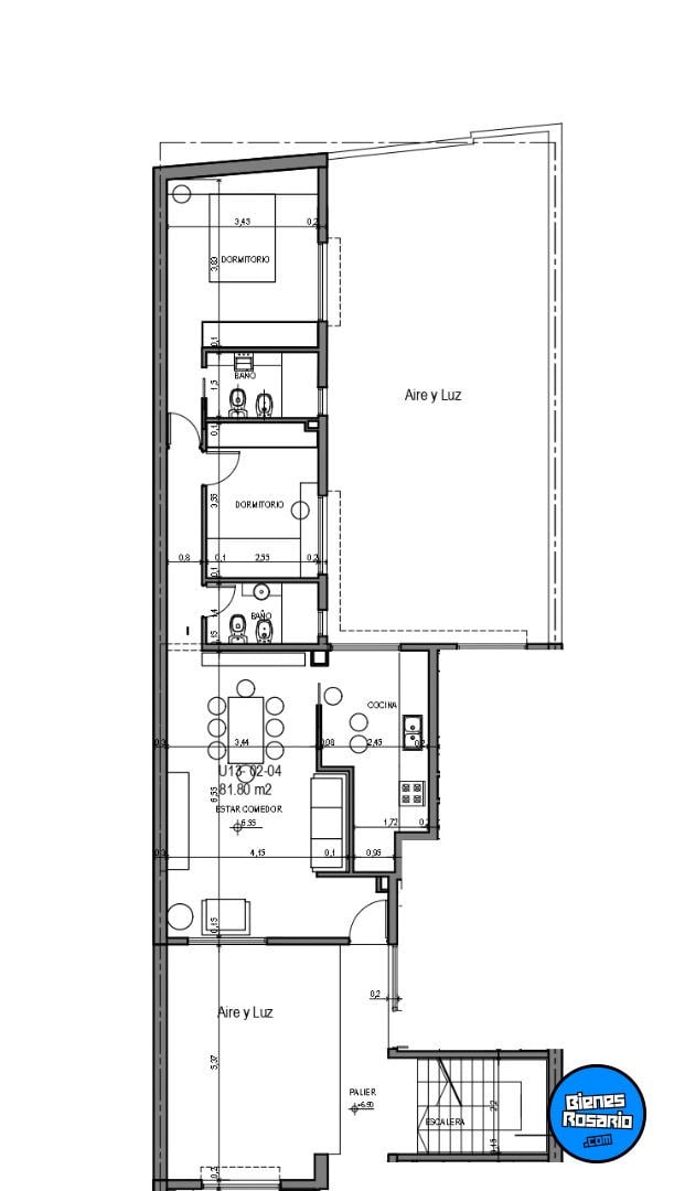
Cuenta con 81 metros cuadrados cubiertos y 42 metros cuadrados de terraza.
Ingreso a gran living comedor con cocina semi integrada separada por una barra desayunadora, equipada con amoblamientos de melamina combinados, mesada de marmol color negro, purificador de aire, calefon y cocina con horno a gas
Luego se accede al 韓timo por un pasillo que distribuye un ba駉 completo, seguido del dormitorio secundario y hacia el final el dormitorio en suite
Ambos dormitorios tienen grandes ventanas y placares empotrados.
Terraza de uso exclusivo con parrillero y mesada con bacha
Disponibilidad inmediata
Permuta por departamento o casa a reciclar
Ubicado a 100 metros de Av Avellaneda y 100 metros de Avenida Pellegrini, se ubica este edificio de planta baja y dos pisos por escaleras
La unidad se encuentra en la segunda planta al contrafrente con orientacion este
Cuenta con 81 metros cuadrados cubiertos y 42 metros cuadrados de terraza.
Ingreso a gran living comedor con cocina semi integrada separada por una barra desayunadora, equipada con amoblamientos de melamina combinados, mesada de marmol color negro, purificador de aire, calefon y cocina con horno a gas
Luego se accede al 韓timo por un pasillo que distribuye un ba駉 completo, seguido del dormitorio secundario y hacia el final el dormitorio en suite
Ambos dormitorios tienen grandes ventanas y placares empotrados.
Terraza de uso exclusivo con parrillero y mesada con bacha
Disponibilidad inmediata
Permuta por departamento o casa a reciclar
Ubicación
R韔 De Janeiro 1555. Rosario. Santa Fe.
Datos de contacto
EIGEN PROPIEDADES
Dirección: Mendoza 3198
Ciudad: Rosario
Provincia: Santa Fe
Teléfono: 341 - 3635550
Celular: 341 - 153635550
eMail: Ver Mail
Dirección: Mendoza 3198
Ciudad: Rosario
Provincia: Santa Fe
Teléfono: 341 - 3635550
Celular: 341 - 153635550
eMail: Ver Mail
Contactar por WhatsApp
Descripción de la propiedad
Operación: Venta
Propiedad: Departamentos
Provincia: Santa Fe
Ciudad: Rosario
Dirección: R韔 de Janeiro 1555
Superficie: 123 m2
Dormitorios: 2 dormitorios
Cantidad de Baños: 2 baños
Gastos Centrales: $ 60.000
Vendedor: Inmobiliaria
Propiedad: Departamentos
Provincia: Santa Fe
Ciudad: Rosario
Dirección: R韔 de Janeiro 1555
Superficie: 123 m2
Dormitorios: 2 dormitorios
Cantidad de Baños: 2 baños
Gastos Centrales: $ 60.000
Vendedor: Inmobiliaria
Precio
U$S 103.000
Imprimir propiedad BienesRosario.com no comercializa la propiedad que aquí se anuncia y no es responsable por la transacción que se realice entre las partes. Verifique los datos de contacto del usuario para comunicarse con él.
Denunciar esta propiedad
ATENCIÓN ESTAFAS!
BienesRosario.com no contacta telefónicamente a sus usuarios.
BienesRosario.com no contacta telefónicamente a sus usuarios.







































